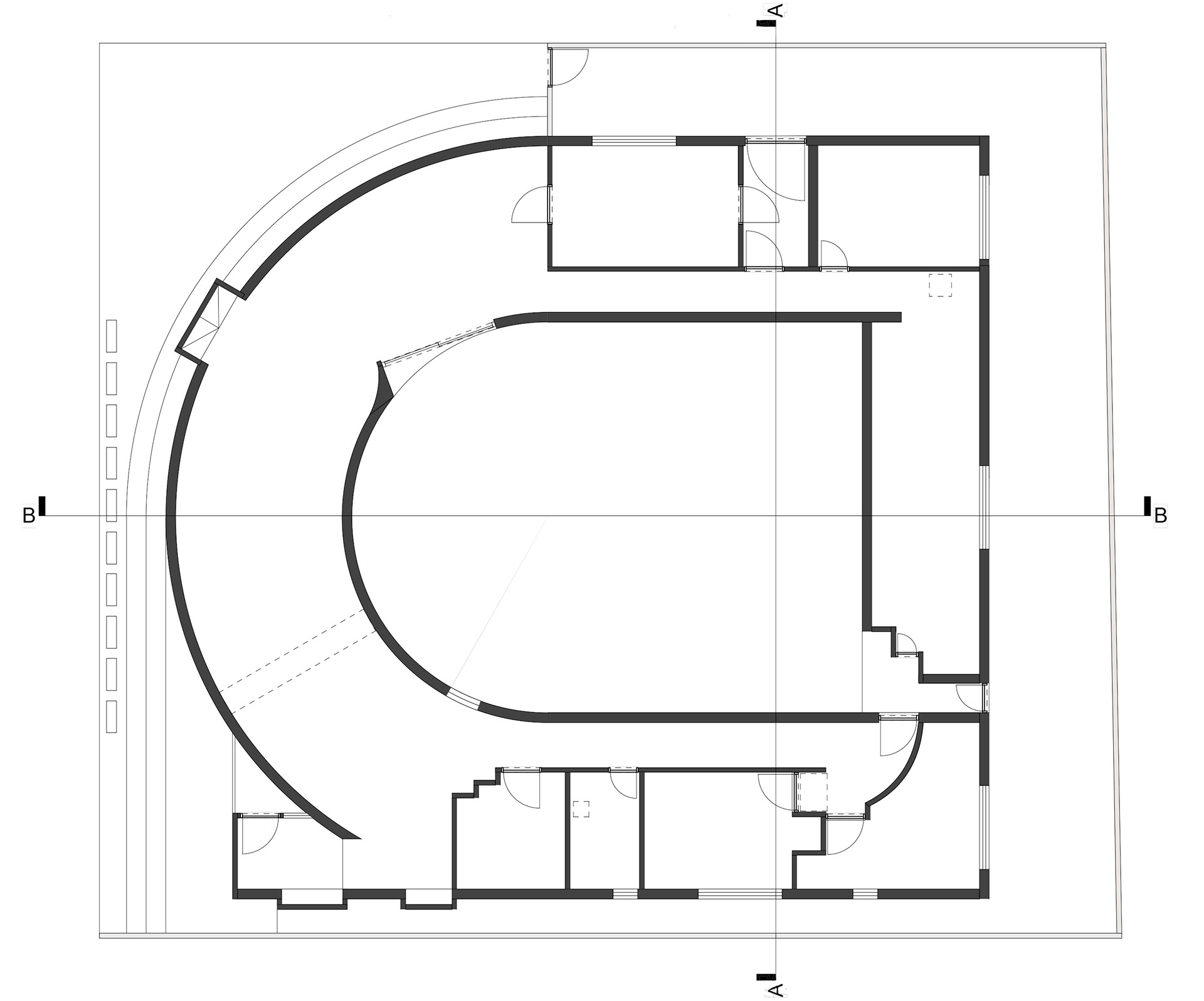
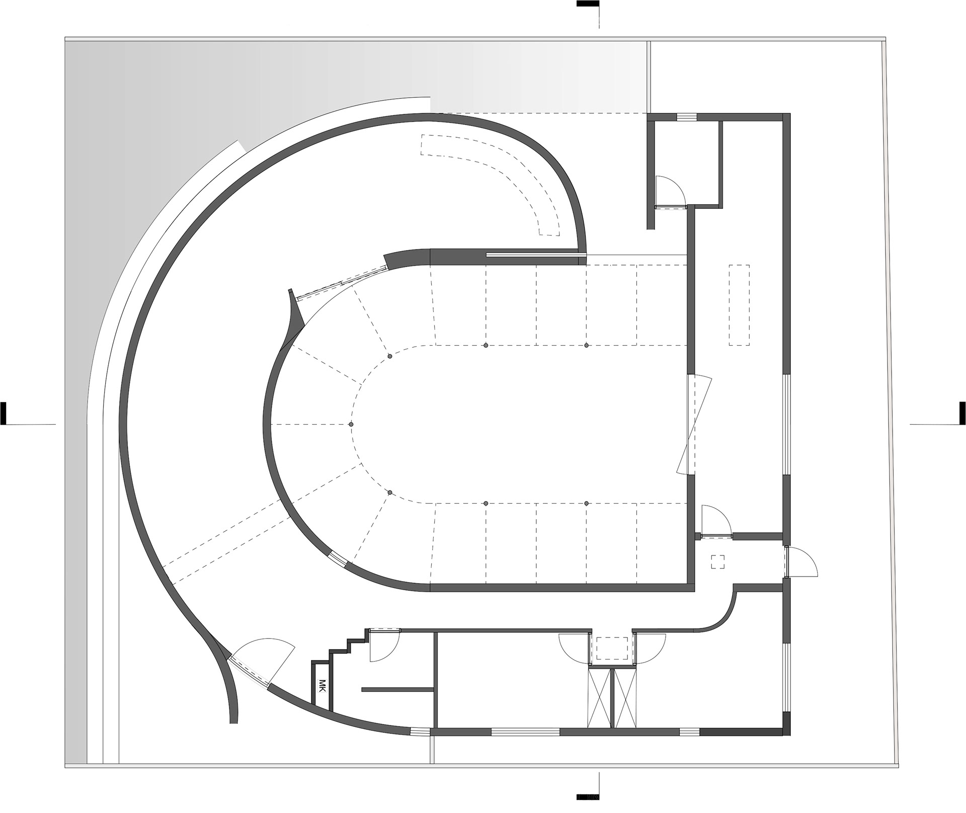
In this project I transformed the famous 'White U' home in Tokyo, by Toyo Ito, for a new imaginary resident: a living-, working- and exhibition-space for a single artist. For this project we were given a choice out of two buildings, one of them being the White U, although the building does not exist anymore. We had to analyse functions, design, usage and architectural inspiration. For the new imaginary resident, we had to create a set of requirements and transform the building to their needs, with respect for the existing architecture.
Below you find the pictures of the scale model and floor plans of the original and new situation. For in-depth insight in my working method for research and designing, please review the booklet (in Dutch) by clicking the button below.
            Original floor plan
Transformed floor plan
1:50 MODEL
DESIGN PROCESS
Back to Top