In this multidisciplinary group project we transformed an old Rotterdam harbor warehouse into a building holding a museum, restaurant, workspaces, cinema/lecture hall and apartments. "Stream of senses" refers to the museum, which focusses on sensory experiences. In Rotterdam there are old harbor areas, currently being transformed into living areas. One of them is the M4H area, where this old warehouse is situated. In this project we not only designed and tried to work with reusable materials as much as possible, but also roughly calculated the feasibility. Our final concept has been shared with the owners of this building.
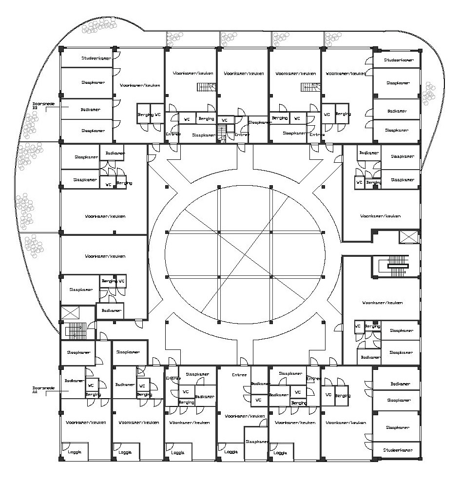
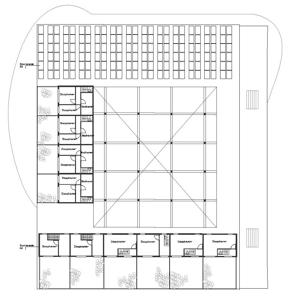
Below you find the visuals and floor plans for this project. For in-depth insight in our working method for research and designing, please review the booklets (in Dutch) by clicking the buttons below.
MUSEUM VISUALS
To give an idea of what a museum focussing on sensory experiences looks like we created a visual per room.
Back to Top