In this transformation project we worked in a multidisciplinary group to create a design for an old factory. The ambition for our project was fully socially oriented, with the focus on inclusiveness, adaptivity and multi-functionality. We also embraced and amplified the existing scars of the old building. In Rotterdam there are old harbor areas, currently being transformed into living areas. One of them is the M4H area, where this old factory is situated. For this building architects already created a rough concept, with only the necessary functions. Our assignment was to further design and elaborate this transformation plan.
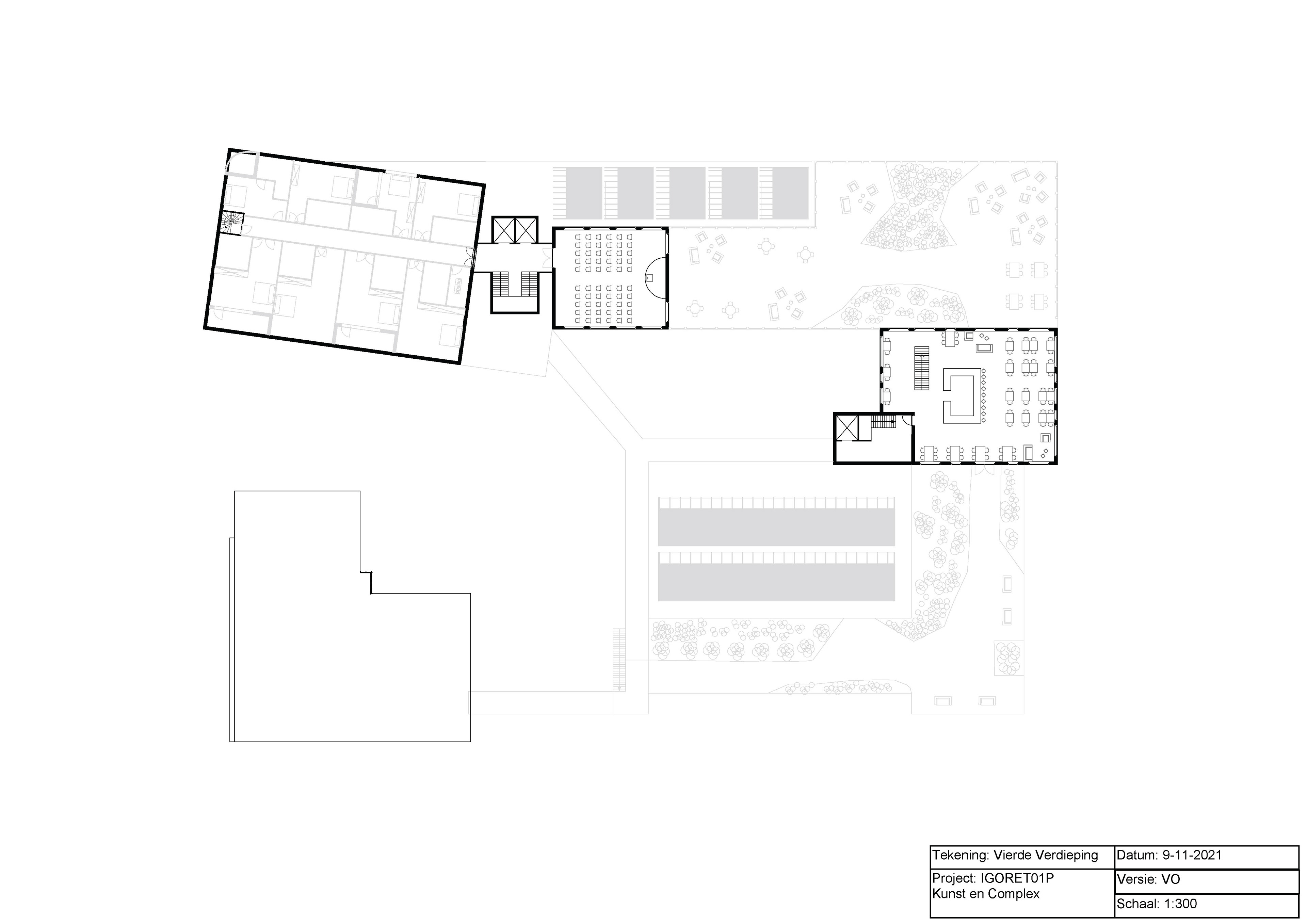
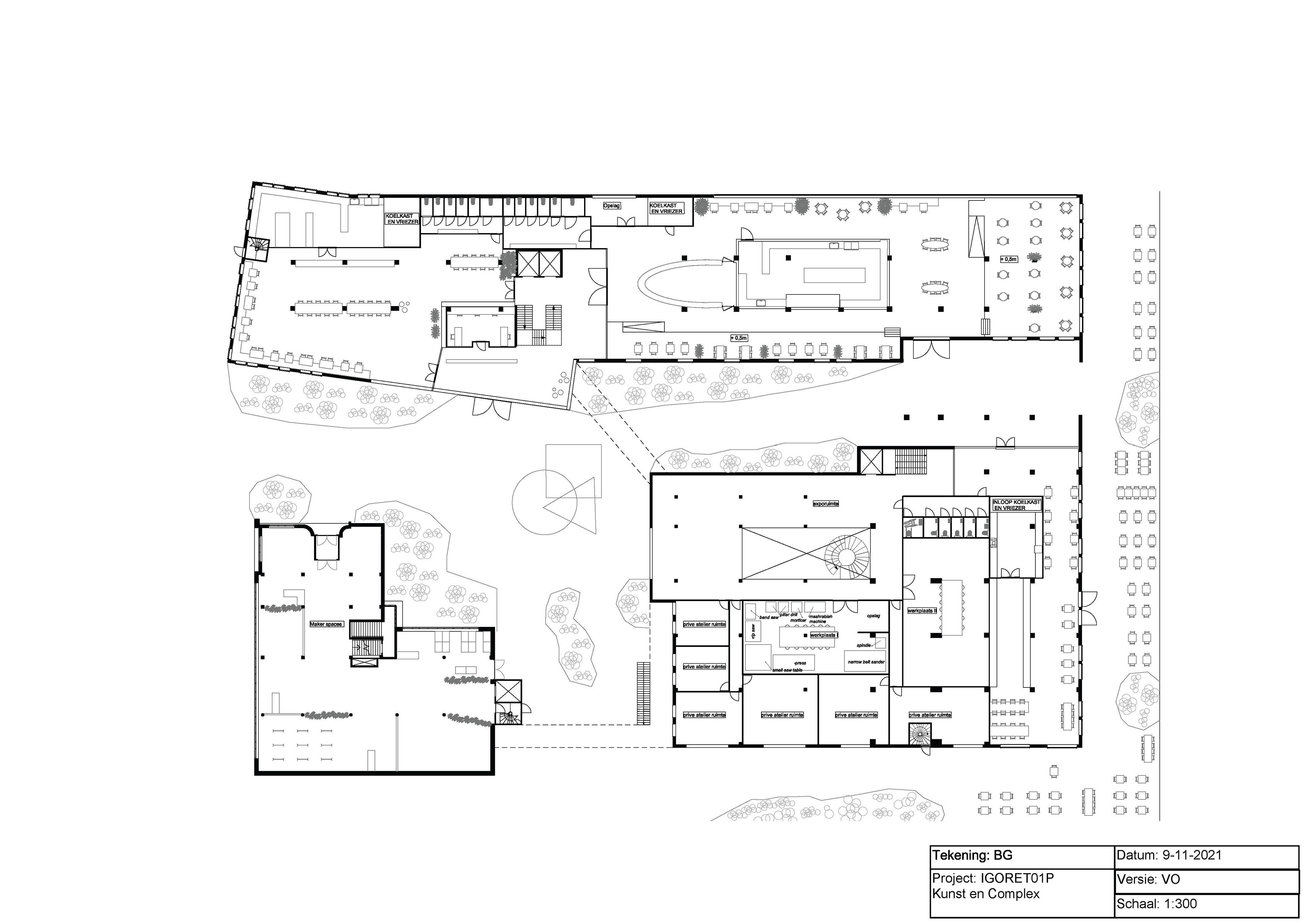
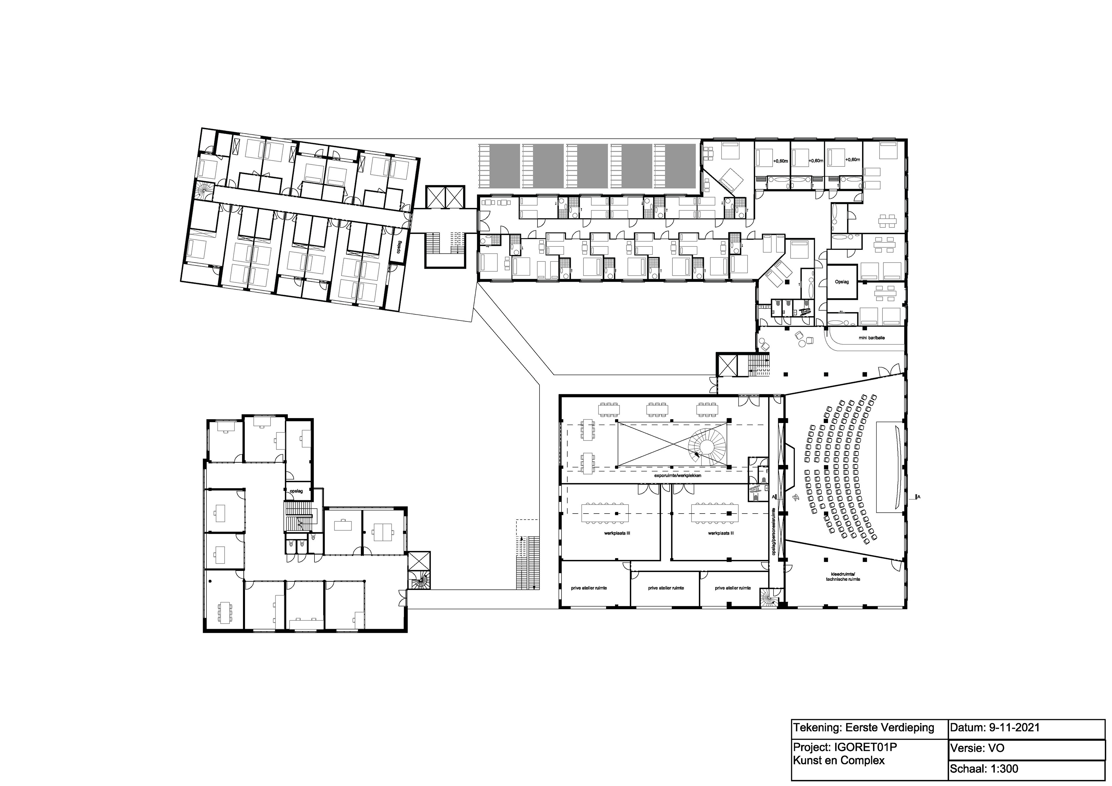
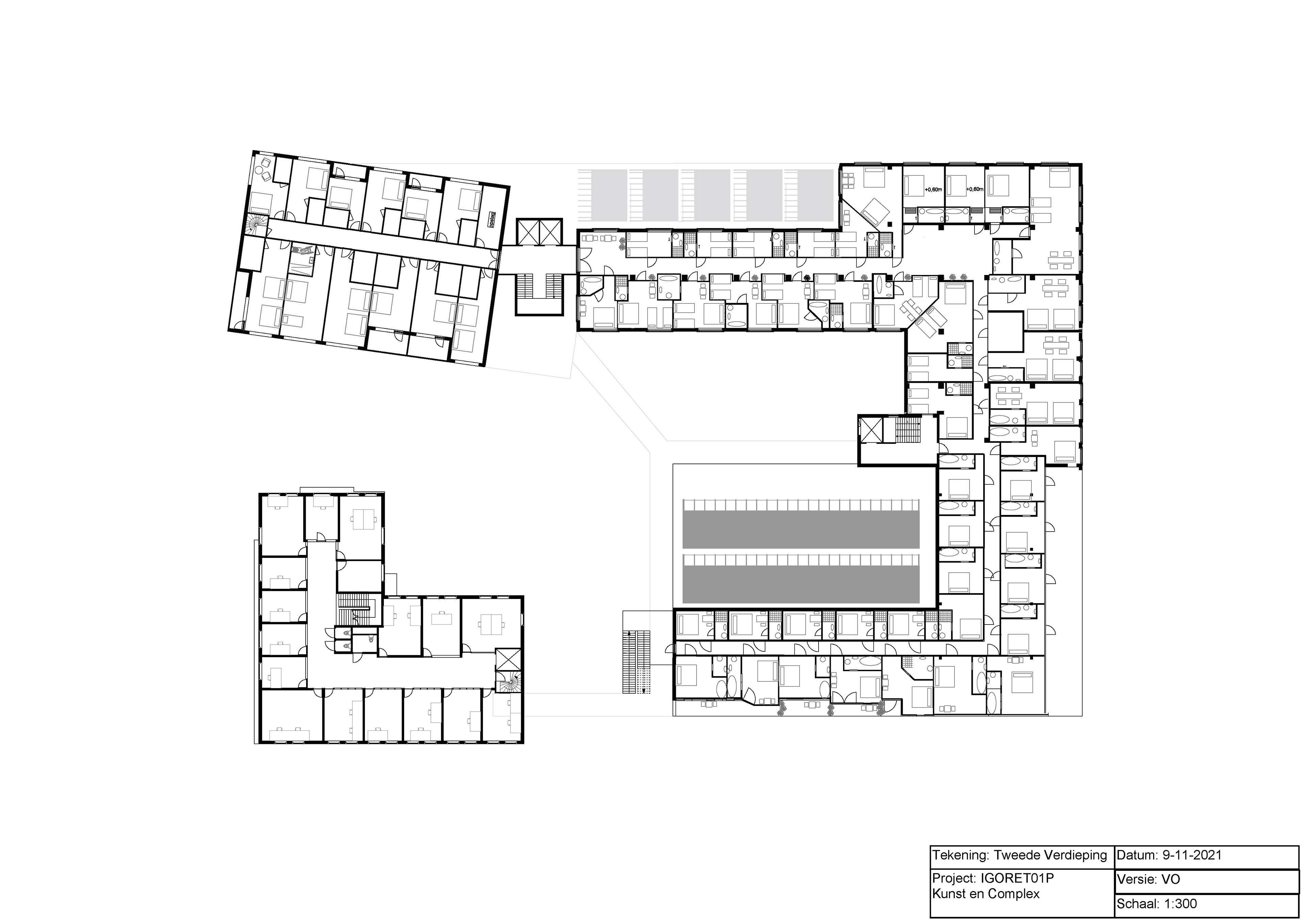
Below you find the visuals, floor plans and pictures of the scale model for this project. For in-depth insight in our working method for research and designing, please review the booklets (in Dutch) by clicking the buttons below.
A HOTEL FOR EVERYONE, BY EVERYONE
One of the main functions in our design is a hotel. Inclusiveness was our main ambition. To widen that scope, we sent out empty floor plans to friends and family to design their ultimate hotel room. Some moodboards and floor plans can be seen below.
Back to Top