Het Tap Plein is the meeting place for music in Delft. In this former factory, music comes together on every scale: a pop venue with a large and a small hall, a music café, a music school, and a cinema. In the design, these functions are connected through a series of plazas, allowing them to blend into one another. Het Tap Plein is a lively square throughout the day; a place where music is made, heard, and learned.
The design of the new extensions responds to the existing architecture of the old Tap building of the Royal Dutch Yeast and Spirits Factory, for example by enlarging the characteristic arches and inverting the relief.
The perforated corten steel façade appears to merge with the original brick from a distance, but up close reveals the contemporary character of the design.
Below you find the visuals, floor plans and technical drawings for this project. For in-depth insight in our working method for research and designing, please review the booklets (in Dutch) by clicking the buttons below.
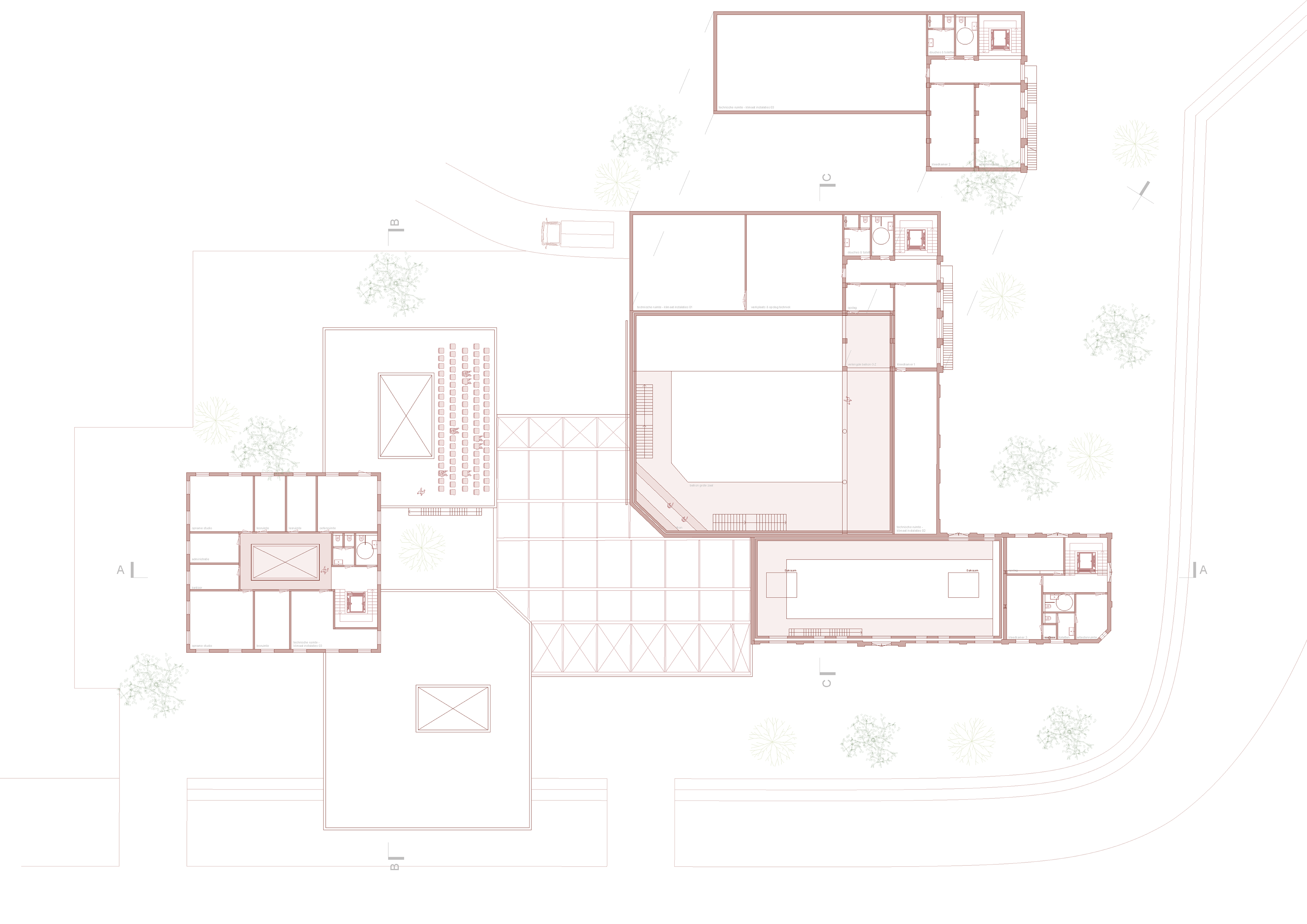
                        Ground Floor
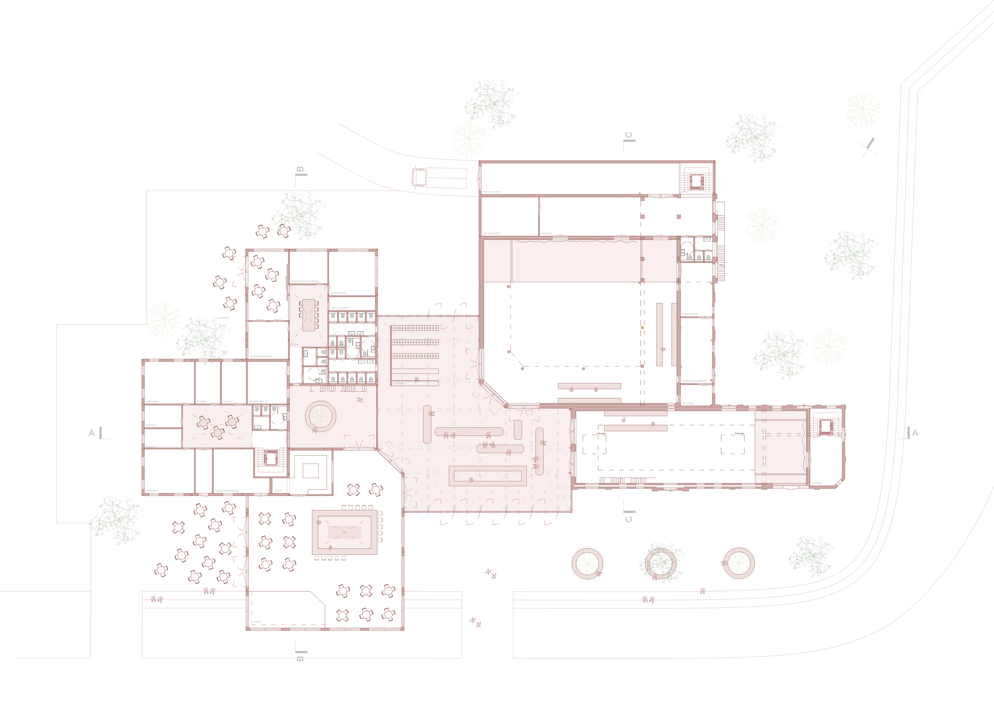
First Floor
DETAILED MATERIALS AND CONSTRUCTION
Back to Top