For my graduation project I chose two old factory buildings in Hilversum. The buildings are part of a developing area named Werf 35. 
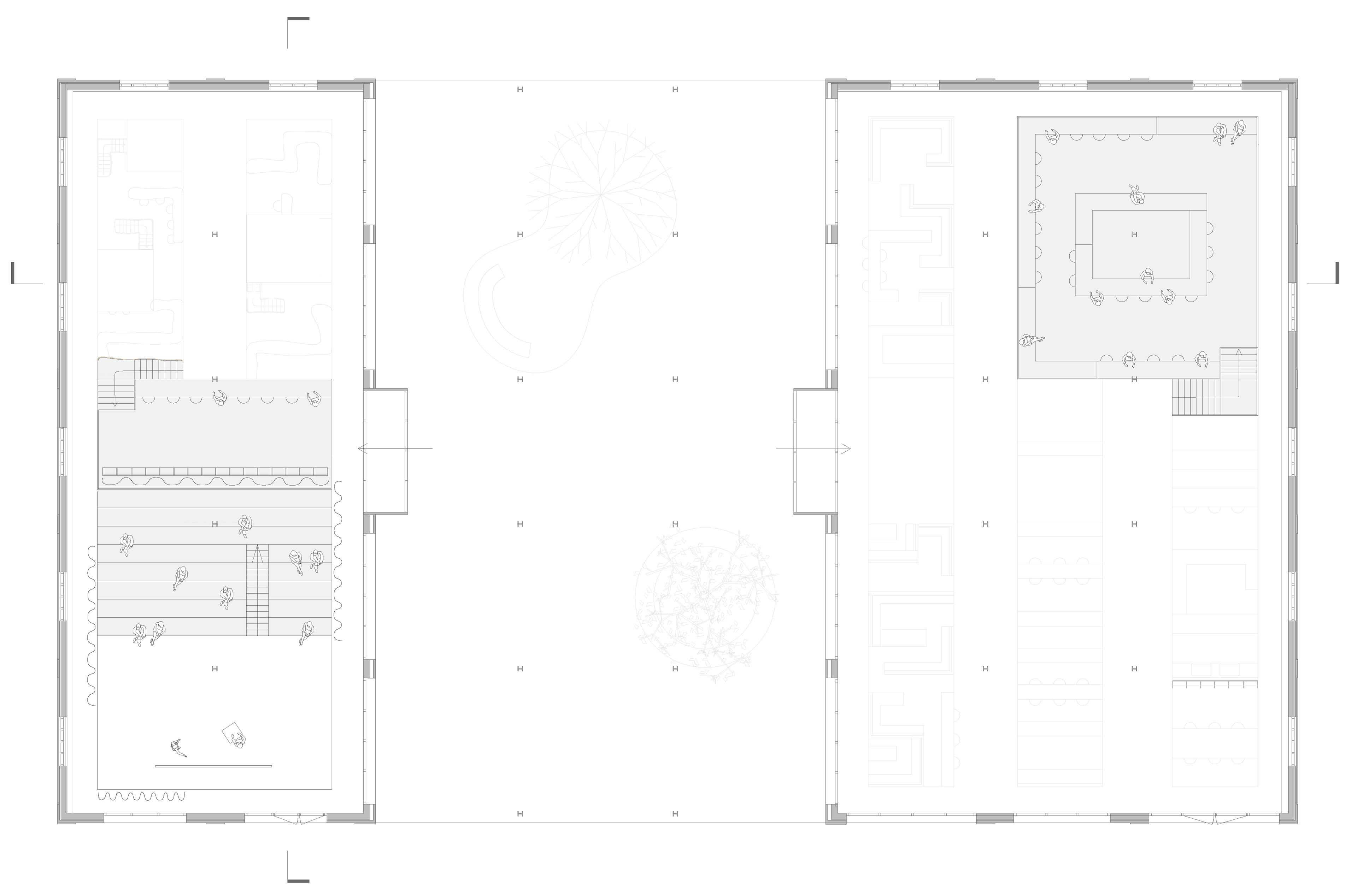
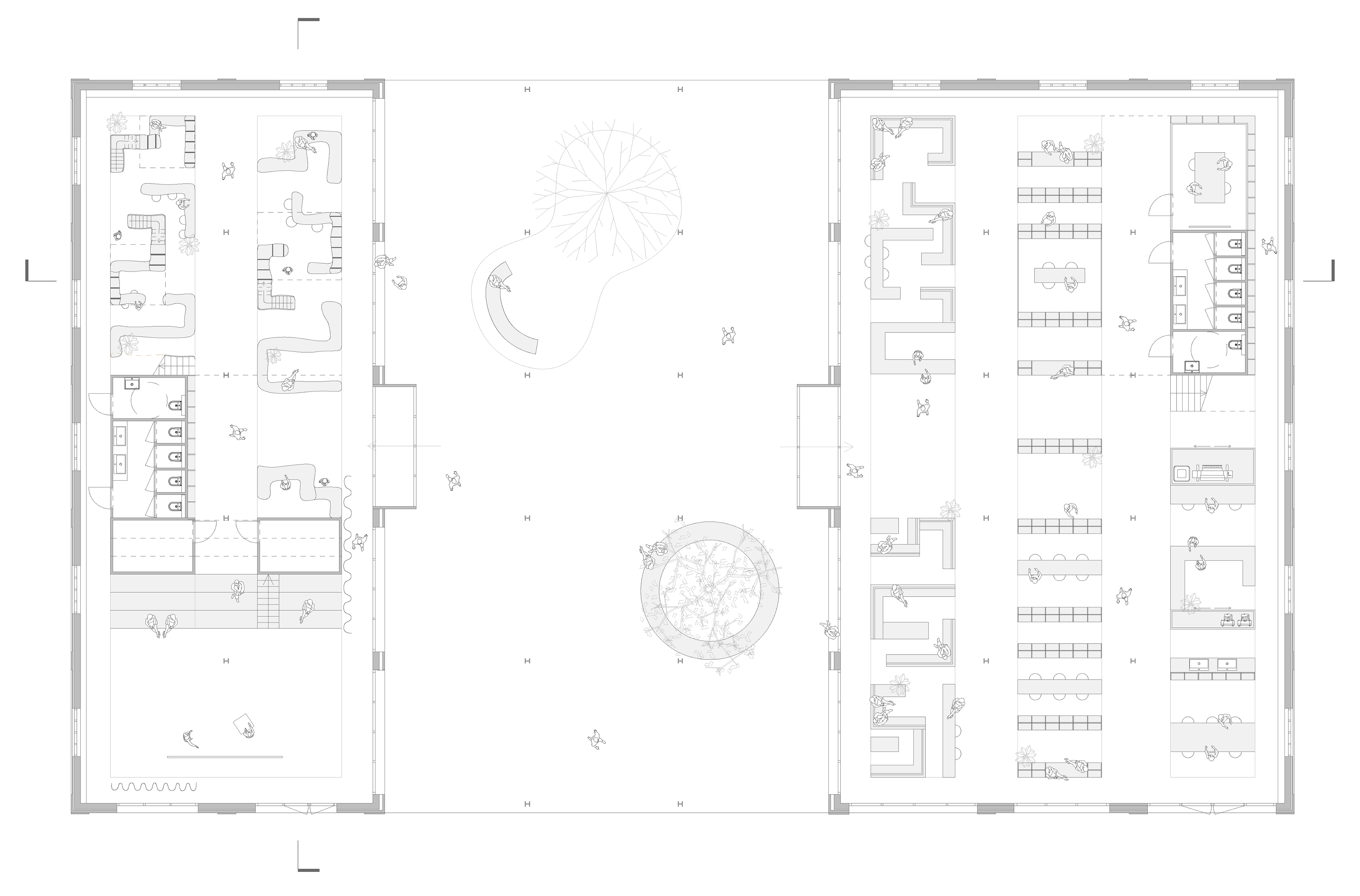
In my project I designed a multifunctional library that fits with in the existing concept for Werf 35.The new function of the two chosen buildings is a multidisciplinary library, for both young and old. It is not a library in the traditional sense, there is also room for different creativity and gathering. Within the creative Werf 35, the library creates a truly accessible meeting place for both young and old, 'werfers' and the neighborhood,  De Leesfabriek has an adult & children's library, graphic workshop & workshop space, auditorium, and (podcast) studio. In the libraries there are not only books, but also focuses on offering meeting places, through seating, reading, lounge and work areas.
​​​​​​​The workshop responds to the creative atmosphere of Werf 35. Here 'Werfers' and other visitors can bring their creations to life, by plotting, (3D) printing, printing, binding, etc. In addition to reading, meeting and making, the auditorium and the (podcast) studio stimulate other ways of creating; here there is room to share knowledge visually, aurally or theatrically. This can be done, for example through lectures, films, etc. 
Below you find the visuals, floor plans and technical drawings for this project. For in-depth insight in our working method for research and designing, please review the booklets (in Dutch) by clicking the buttons below.
Kids Library
Kids Library
Auditorium
Auditorium
Inner couryard
Inner couryard
Library entrance
Library entrance
Lounge area
Lounge area
Ground Floor
      First Floor
DETAILED MATERIALS AND CONSTRUCTION
In the presentation poster below details on materials and construction are shown.
Furniture Design
All the furniture in the library is designed within the grid. Below you see three pieces in detail.
Back to Top