In this project I got to design my own coffee bar in an existing building, located in the city centre of Maastricht. I created a colorful Caribbean experience called 'Colorida'. We had to create a coffee bar with a self chosen theme, but according to a set list of requirements. 
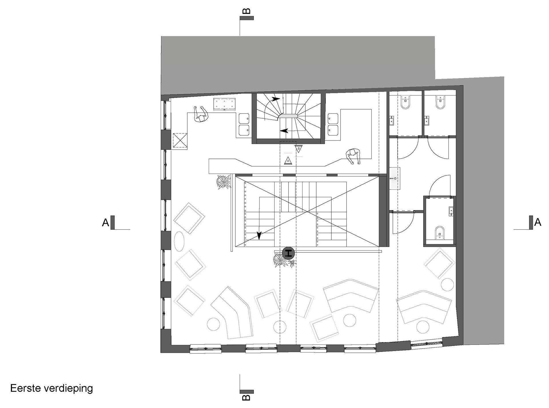
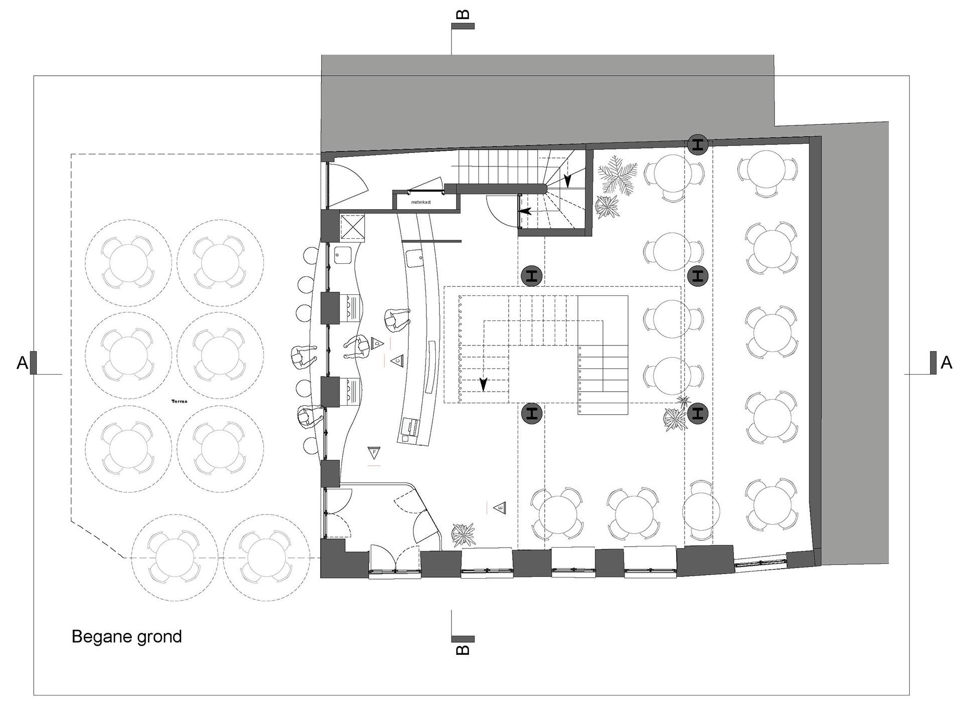
Below you find the visuals, floor plans and profiles for this project. For in-depth insight in my working method for research and designing, please review the booklet (in Dutch) by clicking the button below.
MENU & LOGO
For my coffee bar I also created a menu and a logo that fitted the theme of my bar.
Back to Top